Villa in Vendita
Villa-Struttura Ricettiva con piscina, giardino e uliveto in Vendita a Colonnella, via delle Cerase 5, C.da Rio Moro.
La proprietà si trova in posizione collinare, a circa 2 km dal centro del paese e a 10 minuti dal mare, con vista sul Mare Adriatico e sulla catena degli Appennini.
L'immobile, completamente antisismico, è dotato di 9 alloggi di diverse tipologie, un bar, un ristorante, area giochi, un rigoglioso giardino, posti auto.
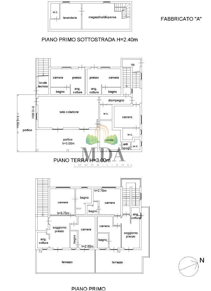
Il corpo principale, 570 mq. circa, si sviluppa su due livelli, dispone di doppio ingresso e presenta l'impianto di riscaldamento a pavimento in tutta la struttura.
Al piano terra si trovano reception, sala colazione/ristorante con portico, bar, cucina, bagno ospiti, spogliatoio con bagno.
Sempre al piano terra sono presenti tre camere con bagno privato ed ingresso indipendente ed in una delle camere sono assenti le barriere architettoniche.
Il portico affaccia a sud-est e dispone di predisposizione per il camino ed impianto di riscaldamento a pavimento.
Il primo piano ospita due appartamenti indipendenti, ciascuno composto da: soggiorno, angolo cottura e due camere con bagno privato, oltre a terrazzi abitabili esposti ad est, uno dei quali dotato di tenda da sole.
Nel soggiorno di uno degli appartamenti è presente un camino.
Il piano seminterrato comprende un locale magazzino, locale lavanderia, locale tecnico, ripostiglio e bagno con doccia.
Adiacente alla struttura principale è presente un'altra abitazione, 90 mq. circa, dotata di quattro ampie camere, tutte con ingresso indipendente, camere con bagno e giardino privato delimitato da siepi.
In uno dei quattro alloggi è possibile ospitare gli amici a quattro zampe.
La struttura dispone di pannelli solari.
Le camere hanno arredamento moderno e funzionale e sono tutte dotate di: smart tv, aria condizionata, portone blindato, sanitari sospesi, copertura lignea in alcune stanze, infissi con doppi vetri, zanzariere, allarme in tutta la struttura.
La struttura offre una piscina di 80 mq. circa di acqua salata, attrezzata con doccia, ombrelloni e lettini, piscina nella quale immergersi e godere della vista panoramica.
Lo spazio esterno, 10.000 mq. circa, è ben curato, piantumato con alberi ornamentali e da frutto, arricchito da giochi per bambini e barbecue.
Oltre il giardino si estende un ricco uliveto con 100 piante circa.
All'interno dell'uliveto sono presenti costruzioni in legno: la più vicina alla piscina è una casa di legno sopraelevata utilizzata attualmente come spazio ricreativo e dispone anche di condizionatore.
Un'altra casetta in legno è utilizzata come rimessa per gli attrezzi e l'altra contiene tutto l'impianto necessario per il funzionamento della piscina. Tutte le costruzioni in legno dispongono di allarme.
La cucina dispone di: abbattitore, bollitore, sei fuochi con due cappe aspiranti, fuoco con pietra lavica, due lavandini, lavastoviglie, una cella frigorifera, un frigorifero ad armadio, banconi da lavoro in acciaio, congelatore, ampi lavelli e tutte le attrezzature necessarie e di ottima qualità.
L'immobile viene venduto completo di arredi e di tutto il materiale occorrente per svolgere l'attività.
La struttura è completamente recintata e con illuminazione esterna.
L’immobile è stato realizzato con contributi della Regione Abruzzo ed è soggetto a vincolo di destinazione turistico-ricettiva fino al 15 marzo 2027. Questo consente all’acquirente di beneficiare di un’attività già avviata e operativa, con potenziale redditività immediata. Alla scadenza del vincolo sarà possibile trasformare l’intera proprietà in civile abitazione, rendendola una prestigiosa residenza privata plurifamiliare o una dimora esclusiva con piscina e terreno panoramico.
Chiama ora la MDA Immobiliare, chiama lo 0861 761357 per avere maggiori informazioni e/o per visionare l'immobile.
Le presenti informazioni non costituiscono elemento contrattuale.
Classe energetica





























































































































